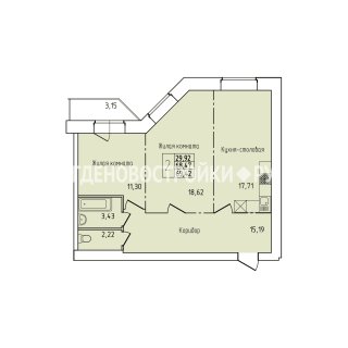
Продажа квартиры: 2-комн., 69.42 кв.м, 6.63 млн.руб. (id:173841)
ЖК «Ясный» 4 очередь
Северодвинск, пр. Труда, 76
2-комн.Площадь: 69.42м2
6 625 480 ₽
/ 95441 ₽/м2Этаж: 9Квартира №183Срок сдачи: 4 кв. 2027Контакты отдела продаж
Купить квартиру в ЖК «Ясный»:
Офис: г. Северодвинск,
пр. Победы, 44А, 1 этаж
+7(8182) 46-11-46, 48-29-29, +7-921-247-02-53
