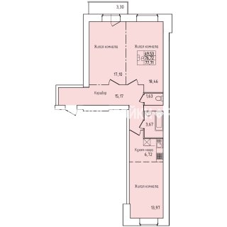
Продажа квартиры: Евро-3-комн., 77.71 кв.м, 7.4 млн.руб. (id:173779)
ЖК «Ясный» 4 очередь
Северодвинск, пр. Труда, 76
Евро-3-комн.Площадь: 77.71м2
7 404 740 ₽
/ 95287 ₽/м2Этаж: 12Квартира №119Срок сдачи: 4 кв. 2027Контакты отдела продаж
Купить квартиру в ЖК «Ясный»:
Офис: г. Северодвинск,
пр. Победы, 44А, 1 этаж
+7(8182) 46-11-46, 48-29-29, +7-921-247-02-53
