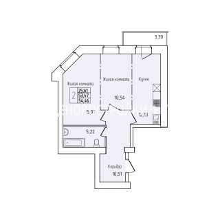
Продажа квартиры: 2-комн., 54.46 кв.м, 5.27 млн.руб. (id:173770)
ЖК «Ясный» 4 очередь
Северодвинск, пр. Труда, 76
2-комн.Площадь: 54.46м2
5 273 700 ₽
/ 96836 ₽/м2Этаж: 11Квартира №108Срок сдачи: 4 кв. 2027Контакты отдела продаж
Купить квартиру в ЖК «Ясный»:
Офис: г. Северодвинск,
пр. Победы, 44А, 1 этаж
+7(8182) 46-11-46, 48-29-29, +7-921-247-02-53
