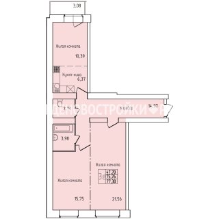
Продажа квартиры: Евро-3-комн., 77.3 кв.м, 7.06 млн.руб. (id:164487)
ЖК «Ясный» 4 очередь
Северодвинск, пр. Труда, 76
Евро-3-комн.Площадь: 77.3м2
7 057 000 ₽
/ 91294 ₽/м2Этаж: 13Квартира №206Срок сдачи: 4 кв. 2027Контакты отдела продаж
Купить квартиру в ЖК «Ясный»:
Офис: г. Северодвинск,
пр. Победы, 44А, 1 этаж
+7(8182) 46-11-46, 48-29-29, +7-921-247-02-53
