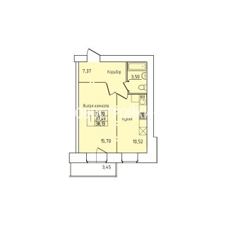
Продажа квартиры: 1-комн., 38.13 кв.м, 3.65 млн.руб. (id:164424)
ЖК «Ясный» 4 очередь
Северодвинск, пр. Труда, 76
1-комн.Площадь: 38.13м2
3 646 090 ₽
/ 95623 ₽/м2Этаж: 3Квартира №143Срок сдачи: 4 кв. 2027Контакты отдела продаж
Купить квартиру в ЖК «Ясный»:
Офис: г. Северодвинск,
пр. Победы, 44А, 1 этаж
+7(8182) 46-11-46, 48-29-29, +7-921-247-02-53
