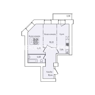
Продажа квартиры: 2-комн., 52.21 кв.м, 4.85 млн.руб. (id:164289)
ЖК «Ясный» 4 очередь
Северодвинск, пр. Труда, 76
2-комн.Площадь: 52.21м2
4 851 110 ₽
/ 92915 ₽/м2Этаж: 1Квартира №8Срок сдачи: 4 кв. 2027Контакты отдела продаж
Купить квартиру в ЖК «Ясный»:
Офис: г. Северодвинск,
пр. Победы, 44А, 1 этаж
+7(8182) 46-11-46, 48-29-29, +7-921-247-02-53
