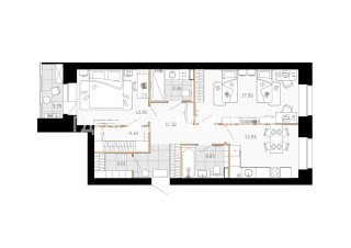
Продажа квартиры: 2-комн., 74.23 кв.м, 9.31 млн.руб. (id:175051)
ЖК «Есенин-1»
Северодвинск, ул. Южная
2-комн.Площадь: 74.23м2
9 312 895 ₽
/ 125460 ₽/м2Этаж: 5Квартира №73Срок сдачи: 2 кв. 2027Контакты отдела продаж
Купить квартиру в ЖК «Есенин-1»:
Офис: Северодвинск,
ул. Плюснина, 11, этаж 2, офис 10
+7 984-334-98-27
