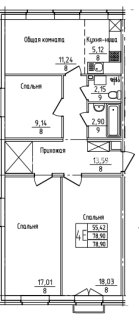
Продажа квартиры: Евро-4-комн., 78 кв.м, 12.62 млн.руб. (id:161390)
ЖК «Ампир» 1 очередь
Северодвинск, пр. Ленина, 3
Евро-4-комн.Площадь: 78м2
12 624 000 ₽
/ 161846 ₽/м2Этаж: 2Срок сдачи: 2 кв. 2027Контакты отдела продаж
Купить квартиру в ЖК «Ампир»:
Офис: Архангельск,
ул. Галушина, 21, кор.1, правое крыло, 2 эт., оф.10
+7 (8182) 40-03-93
