ЖК «Семейные истории». Квартиры от застройщика
Адрес
ул. Ударников
Цена за кв.м
от 106 000 ₽
Площадь квартир
35,9 - 71,9
Кол-во квартир
24
Этажность
4
Срок сдачи
4 кв. 2026
Застройщик
- Описание
- Характеристики
- Цена
- На карте
- Документы
ЖК «Семейные истории» в г. Новодвинске – тепло домашнего очага в сердце города! Новый комфортный, малоквартирный жилой дом возводится на ул. Ударников – всего 24 квартиры.
Преимущества новостройки:
- Удобное расположение с доступом ко всей городской инфраструктуре: школы, детские сады, магазины, парки – все находится в шаговой доступности.
- Теплый 4этажный кирпичный дом: надежность, долговечность и отличная теплоизоляция, создающая комфортный микроклимат в вашей квартире круглый год.
- Комфортные планировки для семей: продуманные планировочные решения, где у каждого члена семьи будет свое личное пространство, а просторная кухня станет центром семейных встреч.
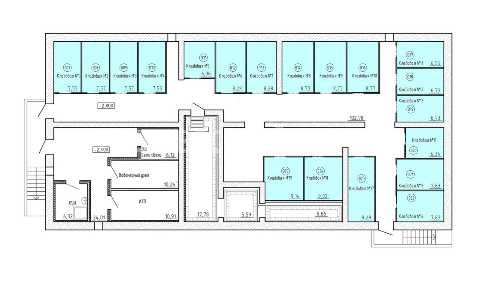
- Индивидуальные кладовые: удобное решение для хранения сезонных вещей, спортивного инвентаря и других необходимых мелочей, освобождая пространство в квартире.
- Безопасный двор с детской площадкой: дети будут в восторге от современной и безопасной игровой площадки, где можно весело проводить время с друзьями.
- Камерная атмосфера: небольшое количество квартир обеспечивает тишину и спокойствие, создавая благоприятную атмосферу для семейной жизни.
Срок сдачи новостройки: IV квартал 2026 года.
Смотреть далее
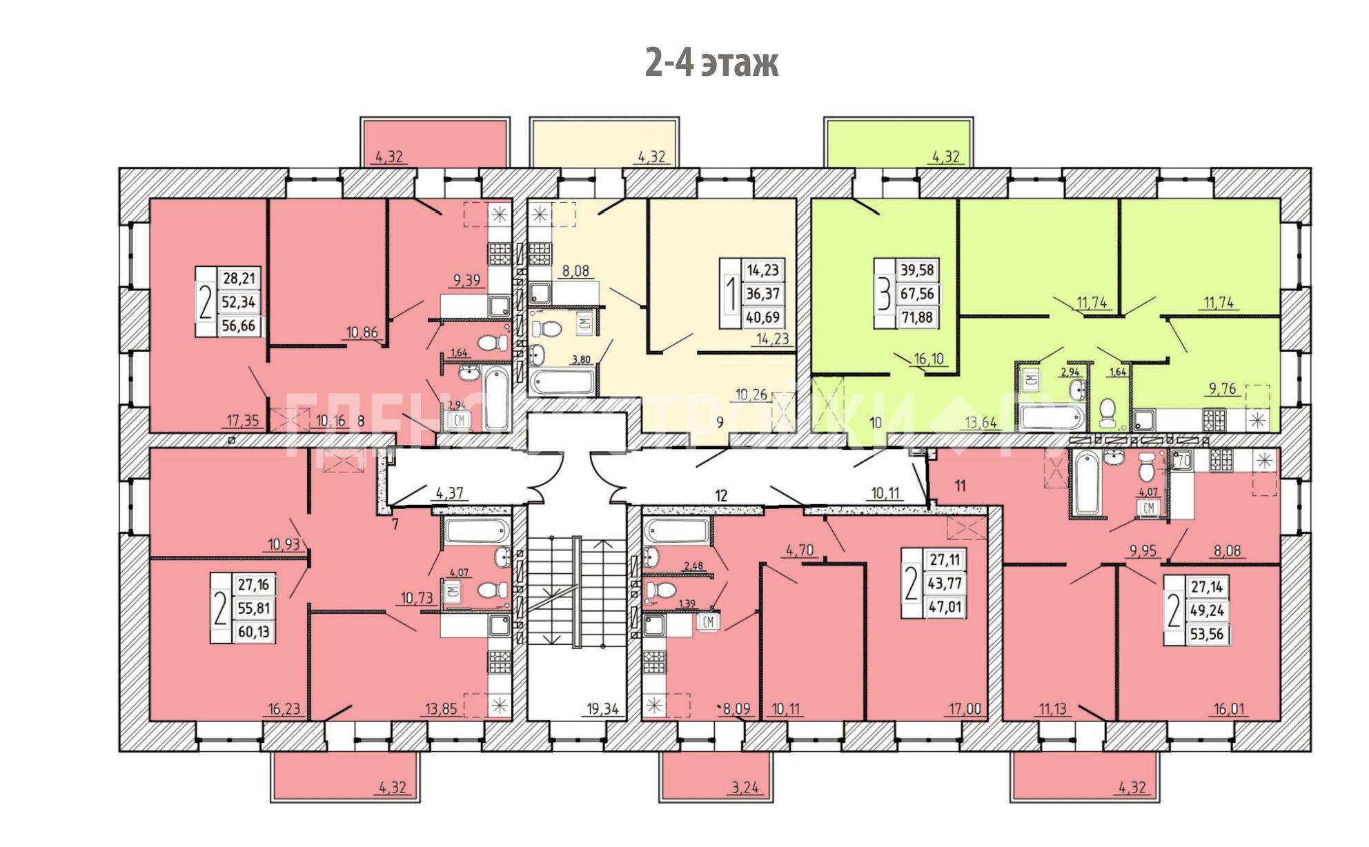
Площадь квартир
35,9-71,9 м2
Тип квартир
- 1-комнатные
- 2-комнатные
- 3-комнатные
Кол-во квартир
24
Этажность
4
Тип здания
Кирпичный
Кол-во секций
1
Кол-во квартир на этаже
6
Высота потолков
2,75 м
Отделка
- черновая
Гостевой паркинг
Есть
Спорт-площадка
Есть
Детская площадка
Есть
Квартиры от 3 876 120 ₽ / цена за кв.м. от 106 000 ₽
| 1-комн. | от 35.89 кв.м | от 3.88 млн. ₽ |
| 2-комн. | от 47.01 кв.м | от 5.08 млн. ₽ |
| 3-комн. | от 67.56 кв.м | от 7.16 млн. ₽ |
Рассрочка
Есть
Ипотека
Есть
Материнский капитал
Есть
Планировки
Квартиры в новостройке
Этаж
Тип квартиры
Найдено квартир: 18
Вид
Этаж
Тип квартиры
Площадь
Стоимость
Срок сдачи
1
1-комн.
35.89 м2
3 876 120 ₽
4 кв. 2026
1
1-комн.
36.37 м2
3 927 960 ₽
4 кв. 2026
2
1-комн.
40.69 м2
4 435 210 ₽
4 кв. 2026
4
1-комн.
40.69 м2
4 435 210 ₽
4 кв. 2026
3
1-комн.
40.69 м2
4 435 210 ₽
4 кв. 2026
4
2-комн.
47.01 м2
5 077 080 ₽
4 кв. 2026
2
2-комн.
47.01 м2
5 077 080 ₽
4 кв. 2026
1
2-комн.
49.24 м2
5 268 680 ₽
4 кв. 2026
1
2-комн.
52.34 м2
5 600 380 ₽
4 кв. 2026
2
2-комн.
53.56 м2
5 784 480 ₽
4 кв. 2026
Ход строительства
Контакты отдела продаж
Купить квартиру в ЖК «Семейные истории»:
Офис: Архангельск,
ул. Красноармейская, 20
+7 902-705-17-14




