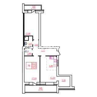
Продажа квартиры: Евро-3-комн., 78.45 кв.м, 8.91 млн.руб. (id:169328)
ЖК «Журавли-1»
Архангельск, ул. Карпогорская
Евро-3-комн.Площадь: 78.45м2
8 913 858 ₽
/ 113625 ₽/м2Этаж: 5Квартира №160Срок сдачи: 4 кв. 2026Контакты отдела продаж
Купить квартиру в ЖК «Журавли-1»:
Офис: г. Архангельск,
пр. Новгородский, 91, 1 этаж (вход с левого торца),
+7(8182) 48-29-29, +7-921-247-02-53
