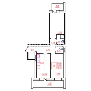
Продажа квартиры: Евро-3-комн., 72.92 кв.м, 8.17 млн.руб. (id:169323)
ЖК «Журавли-1»
Архангельск, ул. Карпогорская
Евро-3-комн.Площадь: 72.92м2
8 166 730 ₽
/ 111996 ₽/м2Этаж: 9Квартира №140Срок сдачи: 4 кв. 2026Контакты отдела продаж
Купить квартиру в ЖК «Журавли-1»:
Офис: г. Архангельск,
пр. Новгородский, 91, 1 этаж (вход с левого торца),
+7(8182) 48-29-29, +7-921-247-02-53
