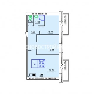
Продажа квартиры: 2-комн., 57.64 кв.м, 6.73 млн.руб. (id:168053)
ЖК «Виктория»
Архангельск, ул. Кедрова
2-комн.Площадь: 57.64м2
6 728 600 ₽
/ 116735 ₽/м2Этаж: 8Квартира №80Срок сдачи: 4 кв. 2027Контакты отдела продаж
Купить квартиру в ЖК «Виктория»:
Офис: г. Архангельск,
пр. Новгородский, 91, 1 этаж (вход с левого торца),
+7(8182) 48-29-29, +7-911-594-46-44, +7-921-247-02-53
