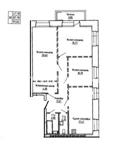
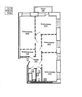
Продажа квартиры: 4-комн., 88.35 кв.м, 15.02 млн.руб. (id:171722)
ЖК «Дом на Ломоносова»
Архангельск, пр. Ломоносова
4-комн.Площадь: 88.35м2
15 018 650 ₽
/ 169990 ₽/м2Этаж: 8Квартира №28Срок сдачи: 2 кв. 2027Контакты отдела продаж
Купить квартиру в ЖК «Дом на Ломоносова»:
Офис: г. Архангельск,
ул. Воскресенская, 20 (Титан Арена), 5 этаж (на лифте), оф. 8
+7 (8182) 40-00-06
