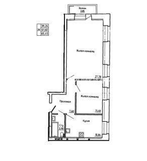
Продажа квартиры: 3-комн., 61.6 кв.м, 8.62 млн.руб. (id:171711)
ЖК «Дом на Ломоносова»
Архангельск, пр. Ломоносова
3-комн.Площадь: 61.6м2
8 624 000 ₽
/ 140000 ₽/м2Этаж: 1Квартира №3Срок сдачи: 2 кв. 2027Контакты отдела продаж
Купить квартиру в ЖК «Дом на Ломоносова»:
Офис: г. Архангельск,
ул. Воскресенская, 20 (Титан Арена), 5 этаж (на лифте), оф. 8
+7 (8182) 40-00-06
